2
2
1
Description
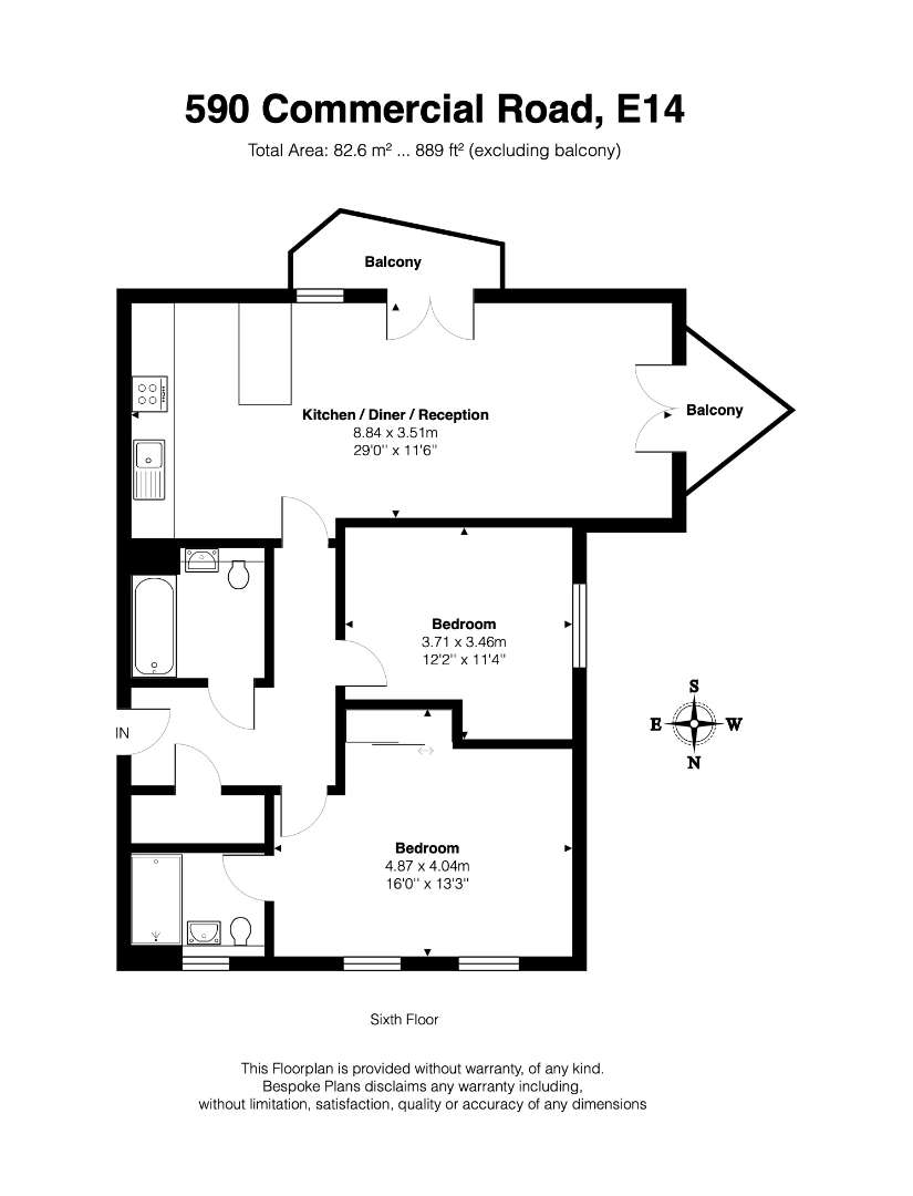
Welcome to this stylish 2-bedroom, 2-bathroom apartment, a bright and modern home with two private balconies and secure underground parking. Just moments from Limehouse DLR Station, commuting is effortless, with excellent connections across London for professionals and families alike.
Thoughtfully furnished throughout, the open-plan living area offers a comfortable space for both relaxing and entertaining, filled with natural light to create a warm and welcoming atmosphere. The en-suit bedroom and guest bedroom are both well-proportioned, complemented by contemporary bathrooms for added convenience.
Step outside and you’ll find a vibrant selection of cafés, shops, bars and restaurants close by, bringing the best of city living right to your doorstep. With modern furnishing, superb transport links and secure parking, this property provides comfort, style and convenience all in one.
All data and information set forth on this website regarding real property, for sale, purchase, rental and/or financing, are from sources regarded as reliable. No warranties are made as to the accuracy of any descriptions and/or other details and such information is subject to errors, omissions, changes of price, tenancies, commissions, prior sales, leases or financing, or withdrawal without notice. Square footages are approximate and may be verified by consulting a professional architect or engineer.
Property Detail
Closest Train Stations
Closest Tube Stations
Disclaimer
This website provides information about buying, selling, renting UK property. The information is from reliable sources, but we can't guarantee that it's always accurate. There may be mistakes or changes in the information, such as price, availability, leases, or financing. The square footage is also an estimate and should be confirmed by a professional architect or engineer.

