2 Albert Basin Way, Royal Docks, London
£450,000
2
2
1
Description
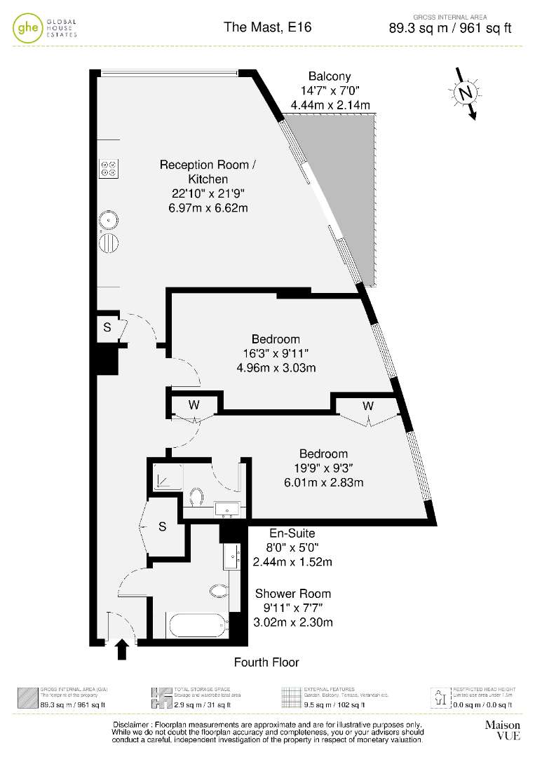
We are delighted to present this spacious and well-appointed two-bedroom apartment, located on the fourth floor of a secure development in Royal Docks.
Offering over 950 sq ft of internal living space, this impressive home combines modern design with generous proportions.
Thoughtfully laid out, the apartment boasts a bright and large open-plan reception area, enhanced by floor-to-ceiling windows that flood the space with natural light and provide access to a private balcony facing the water, where residents can enjoy amazing city views. The contemporary kitchen is beautifully integrated, featuring built-in appliances and a stylish island, perfect for both everyday living and entertaining. Double-glazed windows throughout ensure excellent energy efficiency featuring comfort cooling and underfloor heating for ultimate comfort.
Both bedrooms are generously sized, each benefiting from built-in wardrobes that provide ample storage. The master bedroom further enjoys a modern en-suite bathroom, while a second bathroom serves the rest of the property. Additional storage space is integrated in the hallway.
Residents benefit from a secure and well-maintained building with lift access. The property is perfectly positioned in the vibrant Royal Docks area. Residents are within easy reach of local amenities, including shops, cafés, and restaurants.
Excellent transport links are close by, with Gallions Reach DLR Station providing convenient access to Canary Wharf and the city. For those travelling abroad, London City Airport is also just a short trip away. The property is currently tenanted and can be offered with vacant possession. Please contact Global House Estates for more information.
Service charge: approximately £4883 per annum
Length of lease: approximately 177 years remaining
Ground rent: £711.52 per annum
All data and information set forth on this website regarding real property, for sale, purchase, rental and/or financing, are from sources regarded as reliable. No warranties are made as to the accuracy of any descriptions and/or other details and such information is subject to errors, omissions, changes of price, tenancies, commissions, prior sales, leases or financing, or withdrawal without notice. Square footages are approximate and may be verified by consulting a professional architect or engineer.
Property Detail
Closest Train Stations
Closest Tube Stations
Disclaimer
This website provides information about buying, selling, renting UK property. The information is from reliable sources, but we can't guarantee that it's always accurate. There may be mistakes or changes in the information, such as price, availability, leases, or financing. The square footage is also an estimate and should be confirmed by a professional architect or engineer.

